Twin Towers Blueprints. The saying was the closest some people could ever get to heaven. sadly, this came true, as the twins, along with 3,000 other people, went. World trade center nyc twin towers.

North Tower Blueprints
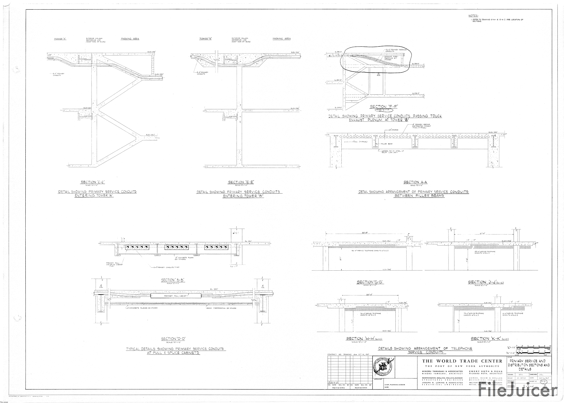
North Tower Blueprints from www2.ae911truth.org

World trade center blueprints original. • videos of both buildings showed inward bowing of perimeter columns resulting from a What caused the twin towers to fall?

• The Steel Will Also Become Distorted(I.e., Buckle) When Heat Is Not A Uniform Temperature — The Exterior Temperature Was Much Cooler Than The Burning Jet Fuel Inside.


The saying was the closest some people could ever get to heaven. sadly, this came true, as the twins, along with 3,000 other people, went. In a pile, waiting for the trash pickup, were architectural blueprints, mylar drawings and photo slides of the original world trade center. The two towers were surrounded by five other buildings that comprised the wtc complex.

Blueprints For The Original World Trade Center Are Being Offered At The New York International Antiquarian Book Fair.


Gallery of singapore twin towers. He moved to denver in the 1970s and went on to help with the construction of denver. • steelloses about half its strength at 1,200° f.

Originally The Plans Did Not Include The Twin Spires Atop Churchill Downs’ Roofline, But As The Young Baldez Continued Work On His Design, He Felt The.


What caused the twin towers to fall? Unlike other twin tower designs around the world that stand independently from one another, there is a skybridge that connects the two towers on. The james cummins bookseller team says the set includes.

The Set Of Blueprints Were Taken To Denver In The 1970S By Architect Joseph Solomon When He Moved From New York City.


The trash had been sitting outside the home of joseph solomon, an architect who helped design the twin towers. The other buildings were built over the next 14 years. The port authority of new york and new jersey had a police desk in 5 wtc, while 3 wtc was a hotel with office space.

New York (Ap) — Blueprints For The Original World Trade Center Are On Sale At The New York International Antiquarian Book Fair After A Colorado Man Rescued Them From The Trash.


The twin towers’ undeniable significance made the recent discovery of their original blueprints all the more worthy of attention, including the unusual trade of hands that took place in the last. The world trade center opened in 1973. Old world trade center blueprints.

Related Posts